Bilocale con Soppalco, Via Privata Reggio, Milano.

In vendita
Milano - Via Privata Reggio
595.000 €
2 locali
Categoria
94
m2
2
Locali
1
Camere
1
Bagni
1
Posti auto
Descrizione
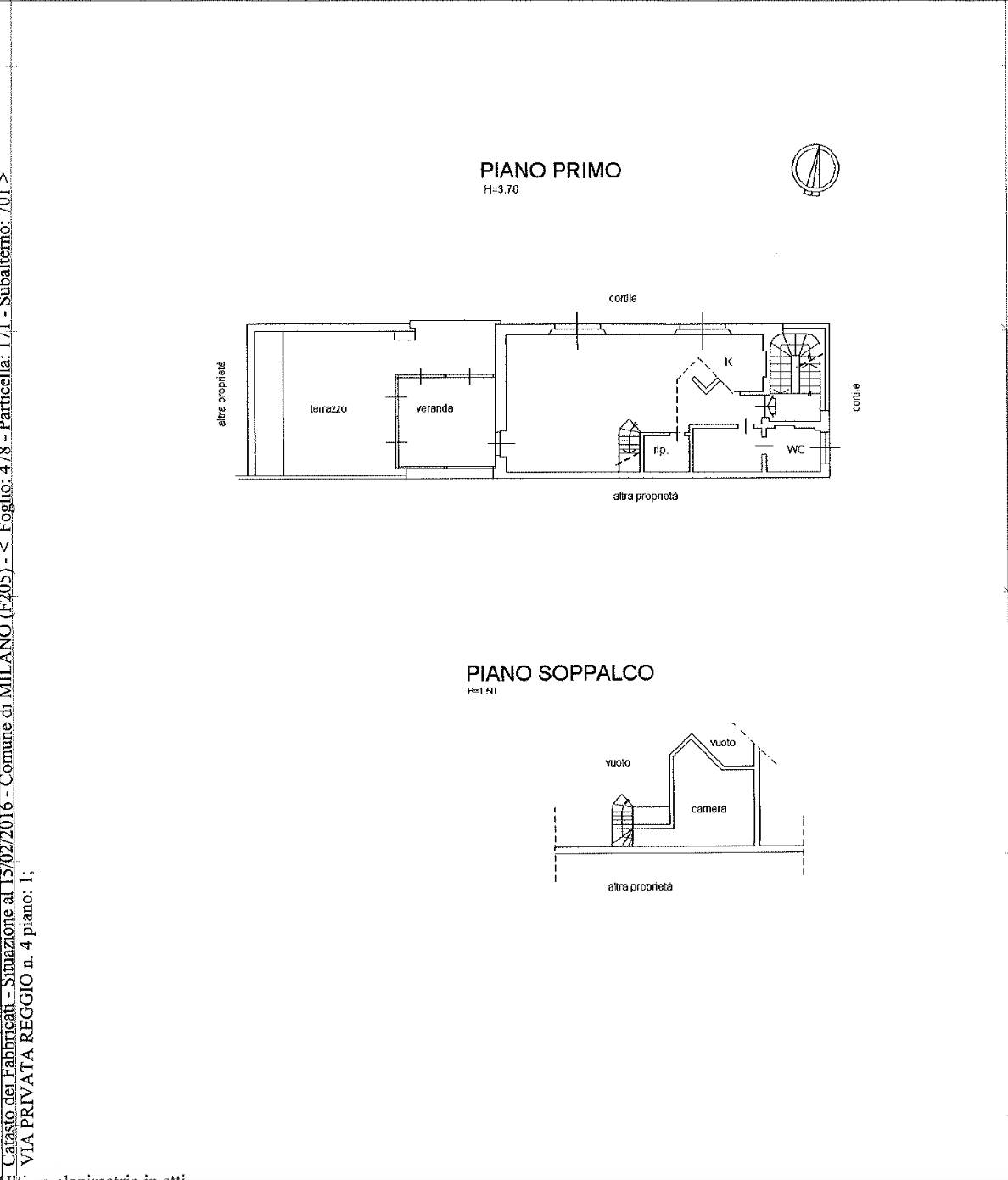
Nel cuore autentico di Milano, all'interno della cerchia ZTL e nascosto in una suggestiva corte storica milanese, si trova questo bilocale dal fascino bohèmien, dove il carattere della vecchia Milano incontra un'atmosfera calda e creativa. L'appartamento si apre su un'ampia zona giorno luminosa e accogliente impreziosita da un camino che diventa protagonista della casa e da una cucina a semi vista perfettamente integrata nello spazio, il soppalco aggiunge movimento e personalità all'ambiente, creando una zona versatile che contribuisce al sapore artistico e informale della casa. La camera da letto intima e silenziosa si affaccia su un grande terrazzo interno, una vera rarità nel centro storico della città, donando luce naturale quiete assoluta. Il bagno completo e funzionale dotato di vasca e doccia, un ripostiglio utile salvaspazio. Una casa dal carattere unico per chi ama vivere in pieno centro, punti salienti della proprietà: ingresso indipendente con scalinata che arriva direttamente all'abitazione, adornato di piante e vegetazione condominiale, posti auto per i condomini interni, non di proprietà ma di utilizzo. Vicinanza a soli cinque minuti a piedi dalla fermata Crocetta M3.

Privacy e prestigio i veri elementi che differenziano questa meravigliosa casa, prenota la tua visita dedicata.
Caratteristiche principali
Codice:
V000024
Città:
Milano
Categoria:
2 locali
Locali:
2
Camere:
1
Bagni:
1
Mq:
94
Posti auto:
1
Terrazzi:
1
Piano:
1
Anno:
1960
Classe energetica:
G
Stato Immobile:
Buono
Grado:
Medio
Posizione:
Centro
Panorama:
Vista Giardino
Lati Liberi:
2
Giardino:
Comune
Arredi:
Non Arredato
Tipo Soggiorno:
Soggiorno
Tipo Cucina:
Angolo Cottura
Infissi:
PVC Doppio Vetro
Accessori
Aria Condizionata
Armadio a Muro
Camino
Cancello Elettrico
Doppi Vetri
Fibra Ottica
Passaggio Pedonale
Veranda
Mappa
Cookie preference